Состав дизайн-проекта
Проект состоит из 30-100 листов:
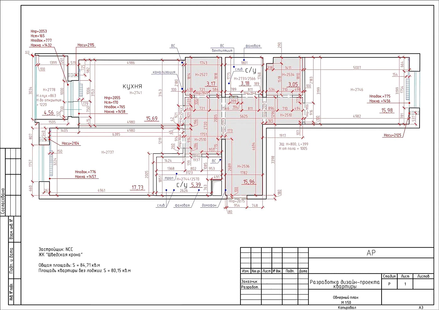
Обмерный план — основа, на которой строится весь проект.
- Позволяет все чертежи сделать в размерах конкретной квартиры и избежать в дальнейшем переделок.Если его не делать, ответственность за несовпадение размеров будет на стороне заказчика.
- Необходим, чтобы дизайнеры несли ответственность за те чертежи и за те размеры, которые выдают.
Почему этот чертеж необходим?
Если его не делать, ответственность за несовпадение размеров будет на стороне заказчика.
Планировочные решения, чтобы все было функционально и эргономично
- Помогает решить все задачи заказчика в имеющейся квартире и сделать интерьер функциональным.
- Дает возможность осуществить грамотное зонирование.
- Воплощает в жизнь максимум идей заказчика в интерьере.
- Гарантирует, что идеи и переносы реализуемы, а расположение коммуникаций и труб продумано.
- Помогает проконтролировать, что в помещении все нужное окажется на своих местах.
- Позволяет расширить площадь за счет балкона или лоджии и согласовать изменения с инстанциям.
Почему этот чертеж необходим?
У заказчика нет опыта решения задач и образования, и чаще всего он не знает, как лучше использовать площади. Дизайнер же, имея опыт реализации более чем 10 проектов, видит квартиру иначе, со всеми плюсами и бонусами, которые из нее можно извлечь. Он учитывает дальнейшее развитие интерьера (дети, гости, перестановки), нормы и удобство, движение людей в пространстве.
Книга П. Нойферта «Строительное проектирование» занимает больше 400 страниц и учитывает все нормы и правила. Дизайнер все это знает, и проектирует интерьер с учетом базы.

Коллажи: определяем уровень и бюджет проекта
- Определяет стиль и задает рамки, благодаря использованию конкретных позиций производителей мебели и материалов.
- Помогает «сверить часы» и определиться что значит «современно», «удобно», «дорого».
Почему это необходимо?
«Дорогая люстра» для всех означает разное. Для одного — 1,5 млн тенге, для другого — 500 тысяч тенге, а третьего — 250 тысяч тенге.
Бюджетная оценка проекта: рассчитываем общую стоимость реализации
- Помогает получить точную оценку стоимости реализации проекта, скорректированную в соответствии с пожеланиями заказчика.
- Учитывает бюджет на все отделочные материалы, ремонтные работы, инженерные системы.
- Дает представление о том, сколько денег понадобится на реализацию еще до составления визуальной концепции.
Почему этот чертеж необходим?
Для того, чтобы дизайнер предлагал такие решения в интерьере, которые в дальнейшем будут оптимальными для заказчика по бюджету реализации. Кроме того, оценка помогает понять, необходима ли проекту корректировка ещё до начала работ.
Визуализация: уравниваем представления
- Создает в голове картинку будущего интерьера, помогает увидеть, каким он будет после отделочных работ.
- Позволяет оценить, какие материалы будут использованы, как они будут выглядеть, как будут сочетаться друг с другом по цветам и текстуре.
- Дает возможность поменять важные детали до начала работ.
- Помогает прикинуть ценник и создать целостный образ проекта с точки зрения реализации.
Почему этот чертеж необходим?
Визуализации необходимы, чтобы и заказчик, и строитель, и дизайнер одинаково увидели будущий интерьер. Также картинки помогают на этапе комплектации реальными материалами подобрать аналоги дороже или дешевле, не нарушая гармонии, созданной дизайнером.
План монтажа: отвечаем на вопросы строителей
- Помогает понять, нужна ли звукоизоляция.
- Указывает, где, что и каким образом достраивать, где расположить короба, декоративные колонны.
- Гарантирует, что не будут забыты вопросы отопления и кондиционирования помещения.
- Отвечает на вопросы о том, из чего делать перегородки, какой толщины, каким образом делать те или иные конструкции, ниши в стенах.
Почему этот чертеж необходим?
У строителей возникает миллион вопросов: какой толщины делать вот это, какой вот это? План монтажа помогает на них четко ответить и служит инструкцией: написано «гипрок», покупаем и используем гипрок. План монтажа сэкономит массу времени заказчика, сделав ненужными долгие переговоры со строителем и ответы на бесконечные звонки со стройки.
План демонтажа, чтобы убрать все лишнее
- Помогает сэкономить время и нервы при общении со строителями: они просто открывают план и руководствуются им.
- Гарантирует контролируемый результат и четкую работу строителей на объекте.
- Учитывает несущие стены, материалы конструкций, при необходимости швеллеры.
Почему этот чертеж необходим?
В случае разногласий со строителями, поможет доказать, что по проекту все верно, и ошиблись они.
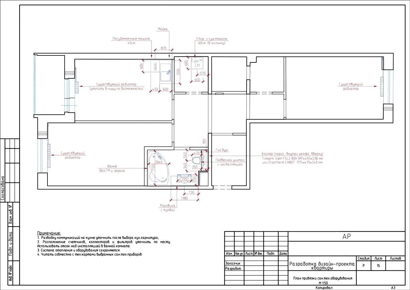
План сантехнического оборудования, чтобы не переделывать все заново
- Гарантирует, что радиатор, посудомоечная машина, стиральная и сушильная машины встанут на свои места, а проводов и труб точно хватит.
- Служит руководством к действию для строителей.
- Позволяет избежать необходимости все переделывать, если унитаз или раковине не влезут или криво встанут в помещении из-за неучтенных труб или перепадов высот.
Почему этот чертеж необходим?
Неправильный и не проверенный в реальности план — гарантия, что придется разбирать кафель и сбивать стены, чтобы добраться до труб. Если переносить унитаз, его могут повредить строители. Грамотный план застрахует от ошибок и затрат времени, сил и денег на переделки.
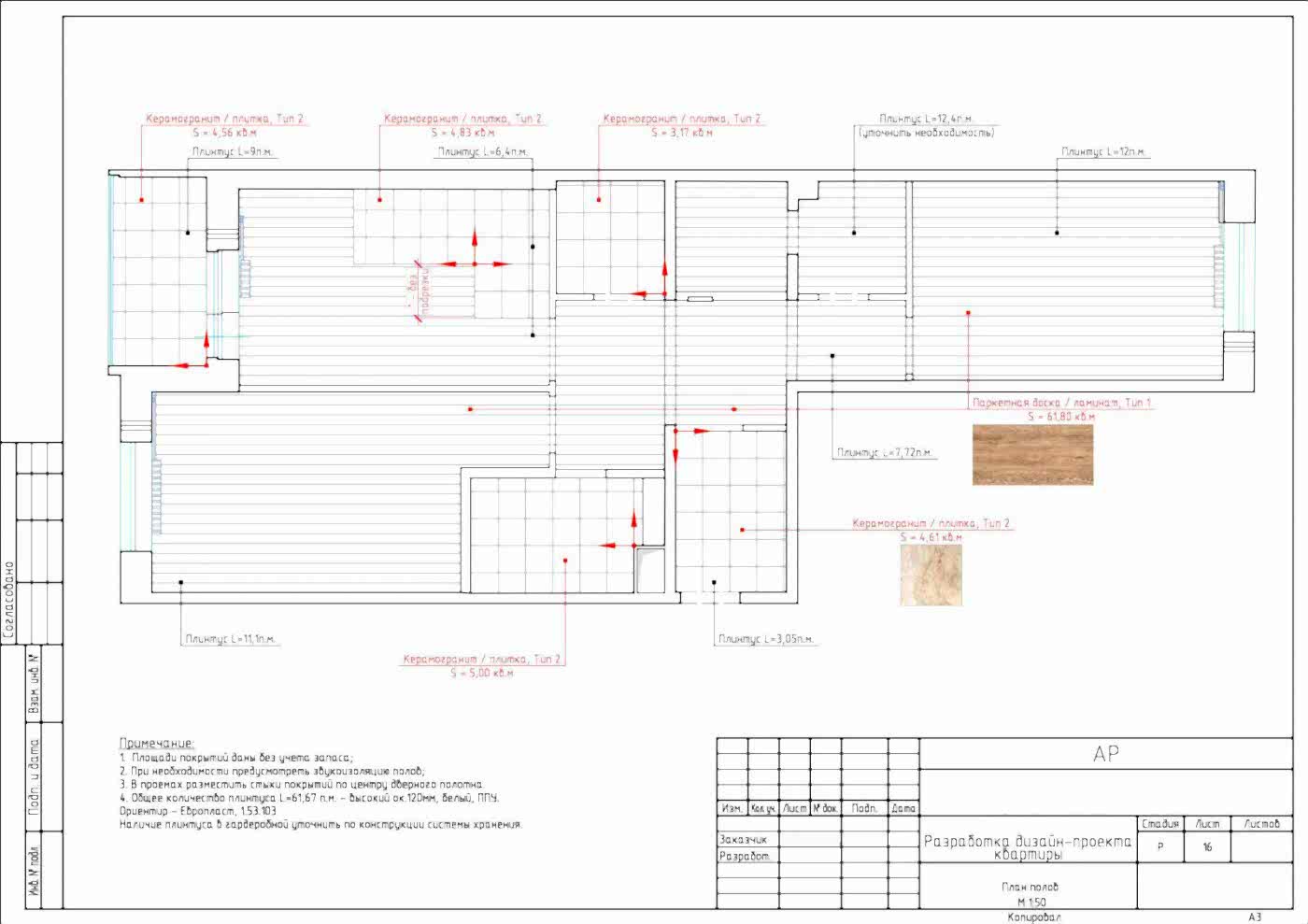
План полов: продумываем раскладку и стыки
- Определяет все необходимые покрытия и раскладку: какие покрытия, в каком объеме, на какие помещения нужны.
- Помогает продумать стыки.
- Дает возможность зонировать помещение.
Почему этот чертеж необходим?
Строители обязательно спросят: «Какую раскладку делать?». А заказчик, вероятно ответит: «Не знаю, какую-нибудь». План гарантирует, что все полы будут уложены в соответствие с задумкой дизайнера, компенсируя недостатки и подчеркивая достоинства помещения. Грамотная раскладка сделает помещение больше, уютнее и светлее, а также разделит на зоны.
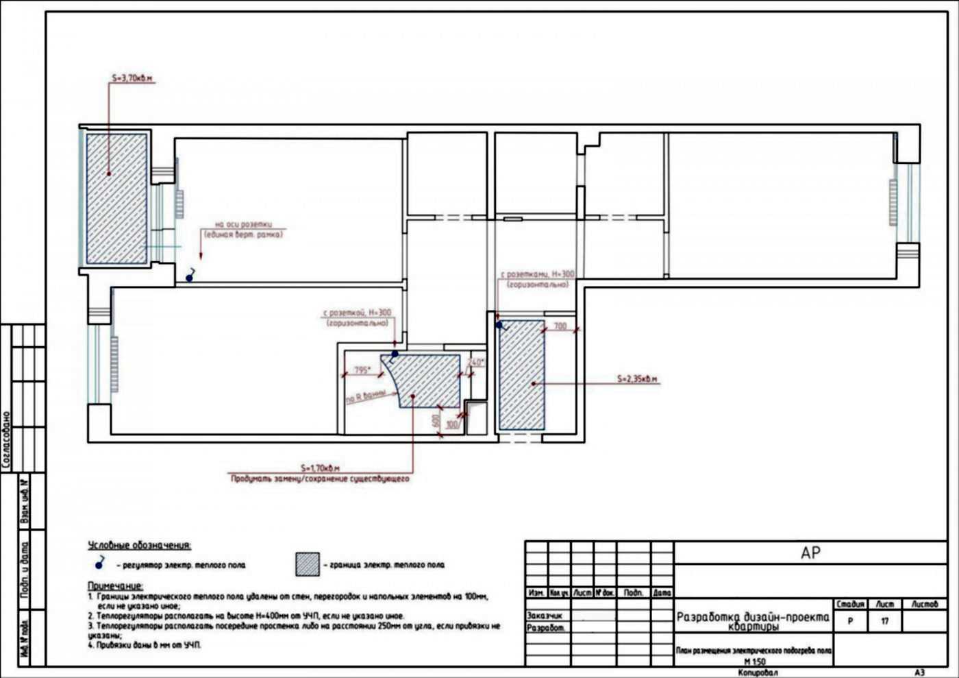
План электрического подогрева пола, чтобы в доме было уютно
- Предусматривает теплый пол везде, где он необходим: на кухне, в ванной, на балконе, чтобы было приятно ходить. Нужен он и в прихожей, чтобы обувь быстрее сохла.
- Помогает сразу определиться с покрытием в соответствие с техникой безопасности
Почему этот чертеж необходим?
Оборудование теплого пола нужно предусмотреть заранее, потому что не все покрытия для него подходят. Паркет или ламинат, например, потрескается. Чтобы избежать неприятных последствий забывчивости или внезапных решений, нужен план.
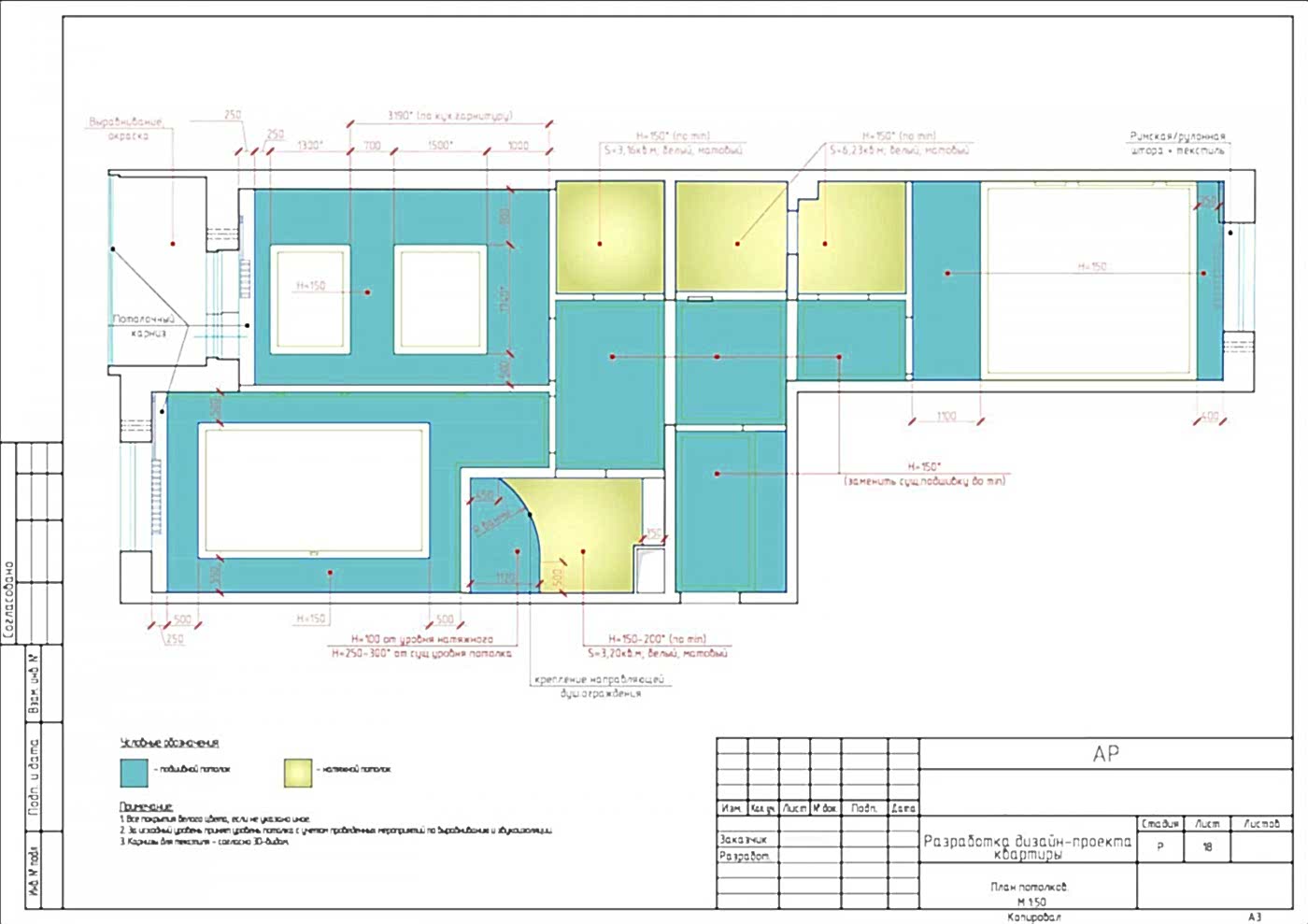
План потолков: продумываем освещение и вентиляцию
- Учитывает как пойдут провода, а также спрятанную электрику, вентиляционные трубы, встроенные светильники, утепление, карнизы.
- Дает возможность сделать зонирование пространства.
- Помогает реализовать визуальную концепцию: как будет выглядеть этот потолок, насколько он будет опущен, из чего он будет сделан.
- Отмечает все артикулы, по которым можно закупать профили и карнизы.
Почему этот чертеж необходим?
План можно использовать как инструкцию при проведении работ, чтобы не держать в голове все вопросы: а как что вешать, насколько ниже, насколько выше.
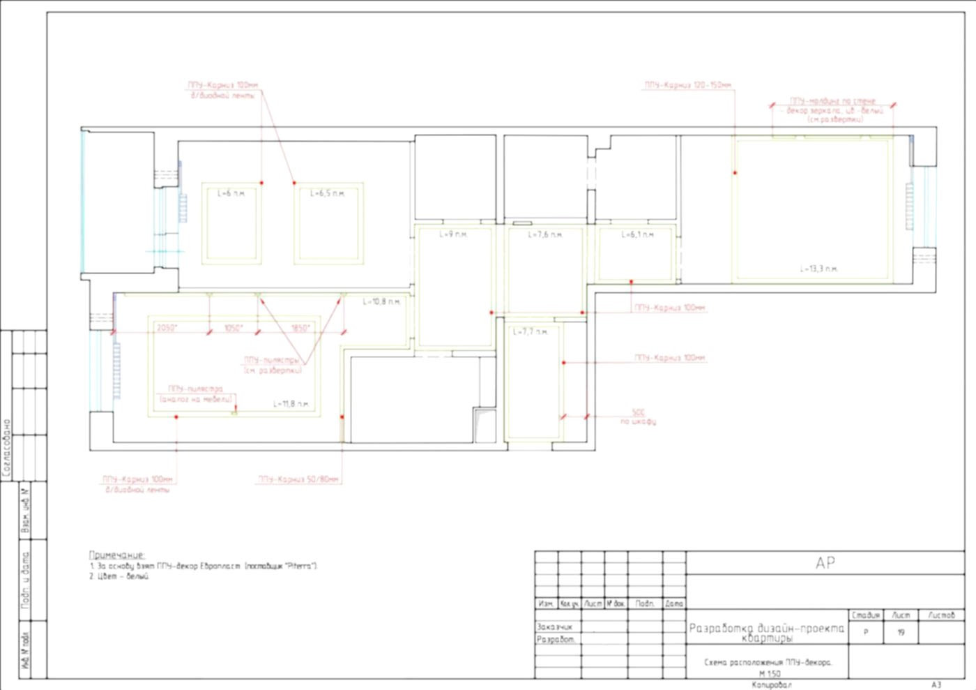
План размещения ППУ декора (пенополиуретанового)
- Показывает, где именно и какой именно декор необходимо использовать.
- Снимает вопросы строителей.
Почему этот чертеж необходим?
Если проект предусматривает использование нестандартного декора и необычных решений, строители потребуют объяснений, и даже после них могут все перепутать. Чтобы отличная идея не получила странную и неверную интерпретацию, нужно запастись планом размещения декора.
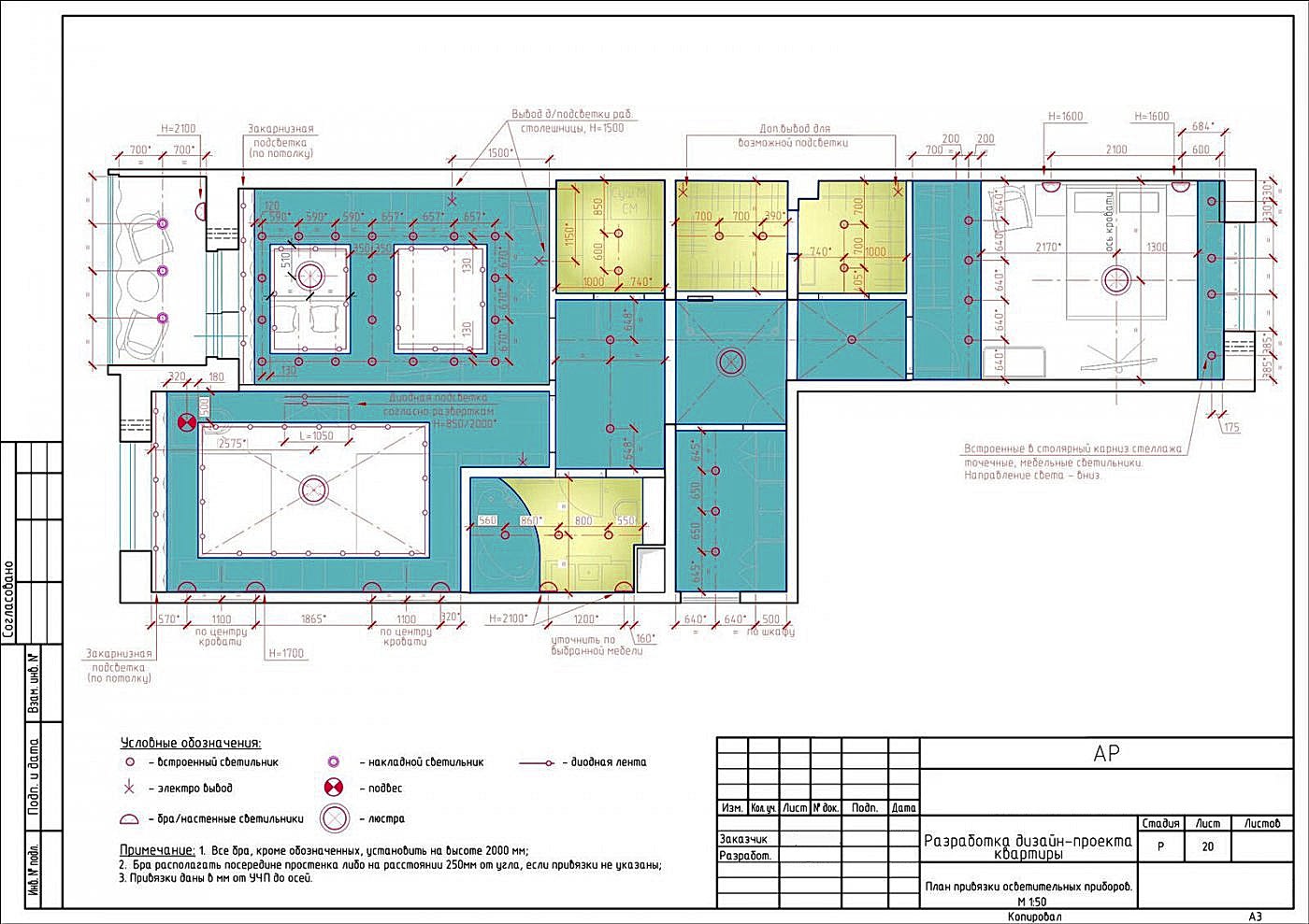
План привязки осветительных приборов, чтобы света было в самый раз
- Является воплощением расчета освещенности.
- Гарантирует, что света не будет ни много, ни мало. А будет в самый раз.
- Позволяет предусмотреть все уровни освещения, зонировать помещение, создать комфортную обстановку.
- Дает возможность создать в квартире три уровня освещенности для разных ситуаций: приема гостей, чтения, создания интимной атмосферы или, напротив, залитой светом гостиной или кухни.
Почему этот чертеж необходим?
Дизайнер продумывает лучшие варианты освещения, крепление светильников и количество необходимых проводов. А заказчик спокойно спит, потому что ему точно хватит света для всех задач.
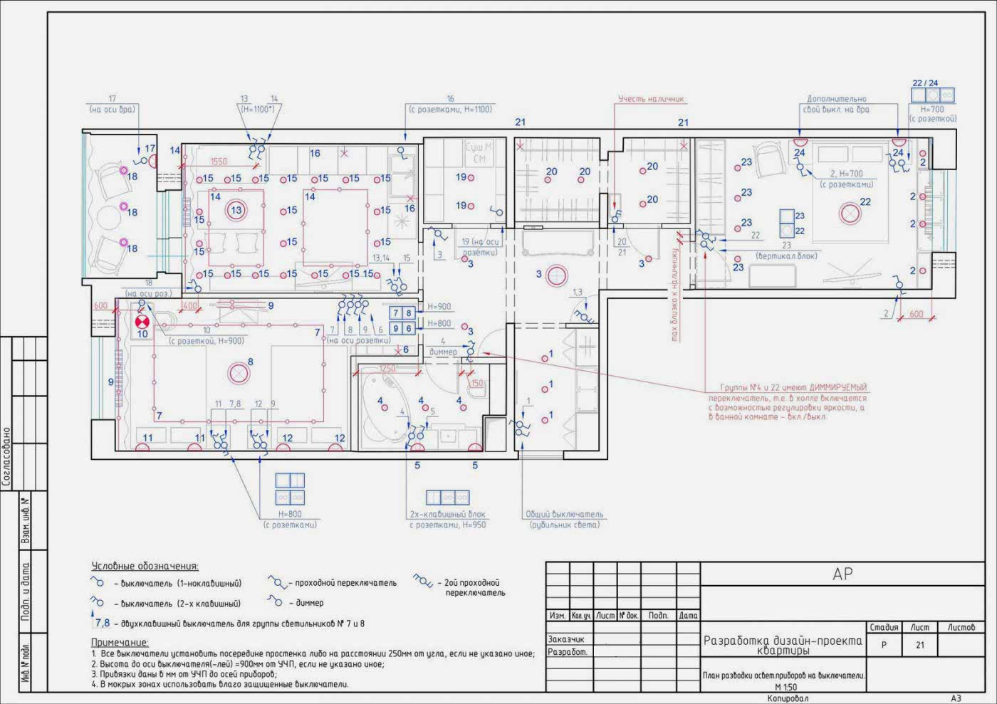
План разводки осветительных приборов на выключатели для удобства в быту
- Дает удобный доступ к выключателям с разными вариантами освещения: с диммерами, переключателями.
- Обеспечивает соответствие всем нормам безопасности.
!Обязательно согласуется с заказчиком.
Почему этот чертеж необходим?
В квартире площадью 250 метров схем включения и выключения, по нашему опыту, больше 30. В таком помещении от двух до трёх километров проводов. И все это обдумал дизайнер.
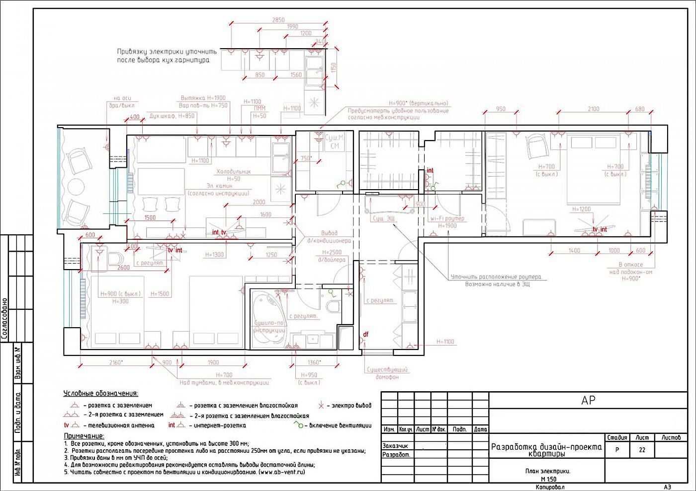
План электрики: обеспечиваем удобство и безопасность
- Указывает положение всех розеток, которые будут размещены. К ним относятся электрические розетки, Интернет, телевизор, акустика
- Гарантирует наличие заземлений, влагостойких розеток и отдельных выводов для энергоемкого оборудования.
!Обязательно согласуется с заказчиком.
Почему этот чертеж необходим?
Электроприборов в каждой квартире десятки, и всем должно хватать розеток. Все эти мелочи продумывает за заказчика дизайнер. А клиент просто наслаждается удобством.
Развертки стен, чтобы задумка дизайнера была воплощена в точности
- Служит источником информации для строителей о способе поклейки обоев или оформления декоративных панелей.
- Уточняет размеры, высоты, характеристики ниш и другие важные для строителей параметры.
- Гарантирует, что реальность будет соответствовать дизайн-проекту.
Почему этот чертеж необходим?
Чтобы не объяснять строителям как нужно разместить панели, на какой высоте приклеить бордюр. Если стена сложной конфигурации, без развертки ее не оформить: будут разногласия и споры со строителями, материалы будут испорчены, а общий вид в итоге станет весьма далек от визуализаций.
План раскладки плитки, чтобы не испортить материалы и не переделывать работу сначала
- Помогает объяснить строителям, как должна лежать плитка на разных поверхностях и какой должна получиться картинка.
- Незаменим при наличии сложных декоративных элементов, например, мозаичных панно.
- Бережет нервы и деньги, исключая необходимость переделывать все заново из-за несоответствия дизайн-проекту.
- Дает понимание, сколько и какой плитки предусматривает проект на конкретную поверхность.
Почему этот чертеж необходим?
План раскладки плитки спасает от неопределенности и минимизирует риск нехватки материала, простоя бригады и возникновения других проблем. Плитка — материал дорогостоящий и тяжелый. Если строители испортят несколько упаковок, заказчик потеряет и деньги, и нервы, и время на доставку новой партии. Кроме того, некоторые коллекции снимают с продажи, и их больше нигде не найти.
Разрезы полов, чтобы не возникло перепадов высоты
- Помогает соблюсти технологию, чтобы избежать переделок и потерь денег и времени.
- Объясняет строителям, каким образом и на какой высоте стыковать различные напольные покрытия в интерьере.
Почему этот чертеж необходим?
При проведении ремонта в разных помещениях часто используют несколько видов напольных покрытий. Чтобы между ними не возникало резких переходов и порожков, о которые легко запнуться, строители должны заранее рассчитывать высоту пола в разных частях квартиры. Используя разрез, бригада сможет спланировать работу. Например, если на кухне керамогранит, а в гостиной паркет, и они стыкуются, то благодаря это плану строители зальют в гостиной стяжку меньше на 2 миллиметра, потому что толщина паркетной доски выше, чем у керамогранита.
Разрезы потолков, чтобы грамотно спрятать все ненужное
- Учитывает расположение воздуховодов в дизайн-проекте и прохождение вентиляционных труб в местах изменения высоты натяжного потолка.
- Гарантирует, что строители не забудут о расположении вентиляционных шахт.
- Отвечает на вопросы строителей, касающиеся монтажа разноуровневых гипсокартонных потолков.
Почему этот чертеж необходим?
Если проект подразумевает изменение потолка и возможность спрятать балки, вентиляционные шахты и другие особенности конфигурации помещения, строителям понадобится руководство к действию. Такой инструкцией и послужит разрез потолков. С ее помощью бригада сможет учесть планы по вентиляции в дизайн-проекте и смонтировать потолки с учетом проходящих воздуховодов и размещения вентиляционного оборудования.
Разрезы потолков, чтобы грамотно спрятать все ненужное
- Собирает в одном месте информацию по всем помещениям и типам покрытий — напольных, настенных, потолочных — с указанием площадей.
- Служит основанием для расчета того, сколько денег уйдет на материалы.
Почему этот чертеж необходим?
Чтобы не объяснять на пальцах, как должны располагаться бордюры, плитка, мозаика. Чтобы не забыть про ограничения и не испортить результат. Наконец, чтобы сэкономить уйму времени на переговорах со строительной бригадой.
Глядя на визуализации, нельзя определить, сколько упаковок плитки, ламината или керамогранита нужно заказать. Ведомость отделки отвечает на все вопросы, связанные с материалами. С ней можно без сомнений идти и покупать или заказывать.
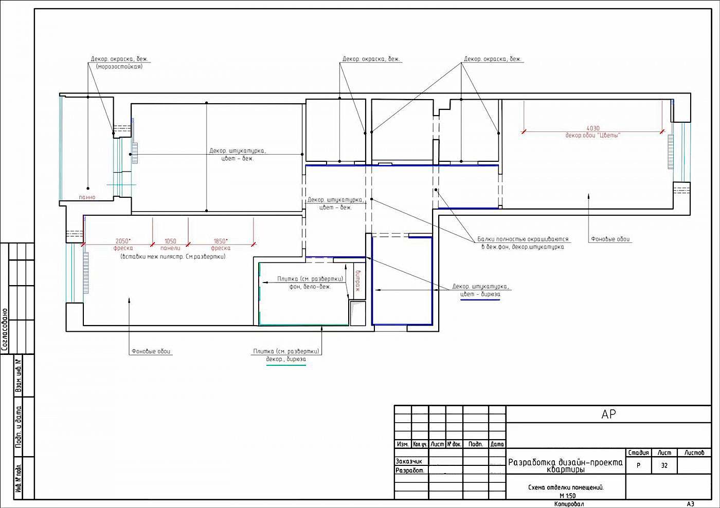
Схема отделки помещений: определяемся с типом черновой отделки и прогнозируем затраты
- Помогает строителям понять, какой тип черновой отделки нужен для стены.
- Дает возможность спрогнозировать время- и трудозатраты.
Почему этот чертеж необходим?
Строительной бригаде нужно понимать, какая черновая отделка требуется по проекту. Схема снимает все вопросы и гарантирует, что каждую поверхность обработают нужным образом: под штукатурку —выровняют до миллиметра, а под декоративные панели —приклеят гипрок. Лишней работы делать не придется, а необходимые трудозатраты будут запланированы.
Таблица комплектации: переходим от идей к реальности
- Помогает воплотить идею из дизайн-проекта, перейти от рассматривания «картинок» к реальным действиям.
- Представляет собой перечень всех материалов и предметов интерьера с указанием коллекции, наименования, артикула, цвета.
- Облегчает задачу по поиску материалов и предметов интерьеров, начиная от смесителя и выключателя, заканчивая плиткой и керамогранитом.
- Содержит перечень конкретных поставщиков, его контакты (адрес и телефон). Важно, что с помощью такой таблицы можно заказывать не у посредников, а у производителей напрямую с существенными скидками.
- Дает возможность прогнозировать бюджет и планировать траты по времени.
- Экономит время и силы, которые ушли бы на самостоятельные попытки «укомплектовать» интерьер.
Почему этот чертеж необходим?
Таблица комплектации — ключ к построению четкой работы по проекту. Она дает возможность просто позвонить и заказать все необходимое без лишних проблем и трудозатрат.
Без таблицы комплектации нужно будет искать самим позиции по магазинам, сравнивать цены, ездить по разным адресам, подбирать объекты друг к другу, как-то узнавать количество, размеры и другие характеристики. Ни о каких скидках производителей не может идти и речь.
Помогает таблица и разумно тратить деньги. Если вы хотите растянуть ремонт на год, таблица покажет, что в этом месяце нужно купить плитку, плинтуса и что-то еще, а через год — вазы, статуэтки и все, без чего можно начать жить.
Смета от строителей, чтобы учесть все необходимые работы
- Смета на ремонтно-отделочные работы включает в себя список всех работ, в том числе инженерное оборудование, которые необходимо произвести, чтобы реализовать проект под ключ. Обозначенная на этом этапе сумма является конечной и в дальнейшем не меняется.
- Помимо сметы на работы, мы предоставляем полную смету на все черновые отделочные материалы.
График реализации и финансирования проекта, чтобы спланировать затраты и рассчитать суммы платежей
- Дает возможность расставить приоритеты и заложить бюджеты на первоочередные нужды.
- Помогает определиться со сроками всех грядущих платежей за работы, материалы, мебель.
- Позволяет планировать будущие расходы и контролировать, сколько денег уходит на реализацию проекта.
- Гарантирует, что на стройплощадке не будет простоя и задержек из-за нехватки чего-то нужного.
Почему этот чертеж необходим?
Часто замечательные проекты растягиваются на годы, изменяются до неузнаваемости или так и остаются нереализованными, потому что заказчики не могут спрогнозировать, сколько денег понадобится на воплощение идеи. График же позволяет контролировать затраты и приобретать все нужное по очереди. Например, в первое время закупить черновые материалы, провода и трубы, затем переходить к чистовой отделке, после — мебель, и только потом декоративные элементы вроде штор, ваз, люстр.
1. Чтобы сделать ремонт легко и просто и сохранить время
2. Чтобы ремонт был уникальным, квартира сохранила индивидуальность, а все ваши идеи воплотились в жизнь
3. Чтобы не потратить деньги впустую

Все чертежи собираются в 2 цветных альбома с жесткой обложкой — один вам, второй на стройку. Качество бумаги и обложки гарантирует, что планы, развертки, визуализации не придут в негодность раньше времени.
При необходимости, дополнительные альбомы можно изготовить у нас по себестоимости.
Кроме того, мы отдаем цифровую версию альбома для дальнейшего использования и таблицу комплектации в электронном виде.